Product Details

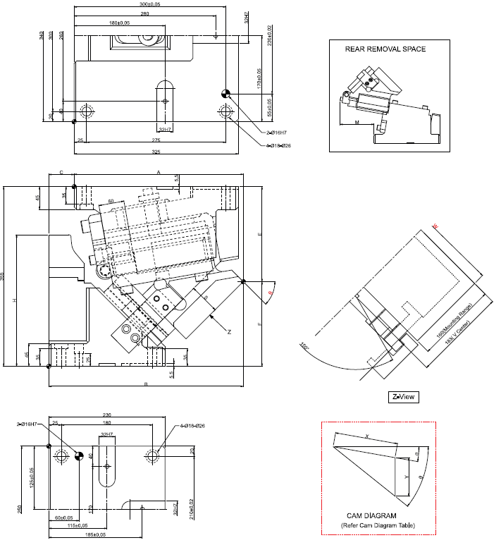
Arial Cam Unit - PCU-CS14-300-(35-65)

Technical Description

Material Type: Refer catalogue for material details

 

Width (W) : 300 mm

Angle (Φ) : 35 to 65 

 

Order Type : Code-Size (W)-Φ-OC
Example : PCU-CS14-300-35-KA

*For OC option Please refer to our catalogue

Product of: Pawan
Pawan Logo
Add to cart CAD File Item Code W MmAnglea mmb mmc mmE mmF mmh mmM mmS mmSL KgSL1 KgSLM KgWF KgWFM Kgwt Kg
PCU-CS14-300-3530035345.03360.0315160.19194.8122015957.31725(175.9)12961(1321.6)14045(1432.2)294.2(30.0)588.4(60.0)178.7
PCU-CS14-300-4030040337.97372.9735173.41181.59240170631725(175.9)13059(1331.7)14045(1432.2)294.2(30.0)588.4(60.0)181.6
PCU-CS14-300-4530045334.71384.7150187.72167.2826017469.61725(175.9)13158(1341.7)14045(1432.2)294.2(30.0)588.4(60.0)184.5
PCU-CS14-300-5030050325.15395.157020315228018177.41725(175.9)13256(1351.8)14045(1432.2)294.2(30.0)588.4(60.0)188.1
PCU-CS14-300-5530055314.23404.2390219.12135.8829518587.11725(175.9)13330(1359.3)14045(1432.2)294.2(30.0)588.4(60.0)193.4
PCU-CS14-300-6030060306.87411.87105235.98119.0231518499.61725(175.9)13429(1369.4)14045(1432.2)294.2(30.0)588.4(60.0)197.6
PCU-CS14-300-6530065298418120253.44101.56340183116.51725(175.9)13527(1379.4)14045(1432.2)294.2(30.0)588.4(60.0)202.9
Related Products