Product Details

Arial Cam Unit - PCU-CS15-70-(00-40)

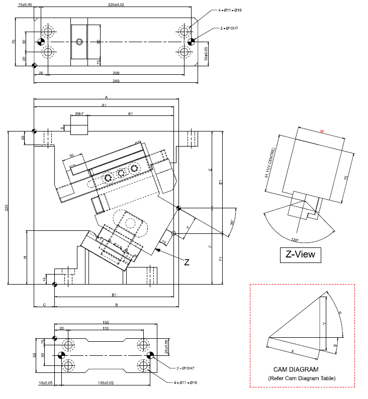
Technical Description

Material Type: Refer catalogue for material details

 

Width (W) : 70 mm

Angle (Φ) : 00 to 40 

 

Order Type : Code-Size (W)-Φ-OC
Example : PCU-CS15-70-00-NF

*For OC option Please refer to our catalogue

Product of: Pawan
Pawan Logo
Add to cart CAD File Item Code W MmAnglea mma1 mmb mmb1 mmc mmE mme1 mmF mmf1 mmh mmK1 MmY MmS mmSL KgSL1 KgSLM KgWF Kgwt Kg
PCU-CS15-70-00700237.37249.37135.37147.371028512014010546.4155.53519.369 (7.0)504(51.4)657(67.0)98.1 (10.0)16.1
PCU-CS15-70-05705234.87243.53142.87151.539286.28125138.7210053.9149.537.8221.369 (7.0)519(53.0)657(67.0)98.1 (10.0)15.4
PCU-CS15-70-107010232.82237.74151.82156.748188.76130136.249560.914539.7623.369 (7.0)531(54.2)657(67.0)98.1 (10.0)14.8
PCU-CS15-70-157015217.54219.67160.54162.675796.59135128.419063.1140.536.5525.469 (7.0)541(55.2)657(67.0)98.1 (10.0)14.1
PCU-CS15-70-207020224.52222.62172.52170.625299.67140125.338570.5134.538.5527.669 (7.0)551(56.2)657(67.0)98.1 (10.0)14.1
PCU-CS15-70-257025223.46218.26181.46176.2642105.45145119.558075.713038.043069 (7.0)559(57.0)657(67.0)98.1 (10.0)14
PCU-CS15-70-307030211.54204.03181.54174.0330112.99150112.017579.4125.535.8132.669 (7.0)566(57.8)657(67.0)98.1 (10.0)13.8
PCU-CS15-70-357035210.68198.86193.68181.8617117.2155107.87086.8119.537.7435.469 (7.0)574(58.6)657(67.0)98.1 (10.0)13.7
PCU-CS15-70-407040204.84191.19200.84187.194125.0716099.936590.611535.5338.669 (7.0)580(59.2)657(67.0)98.1 (10.0)13.8
Related Products