Product Details

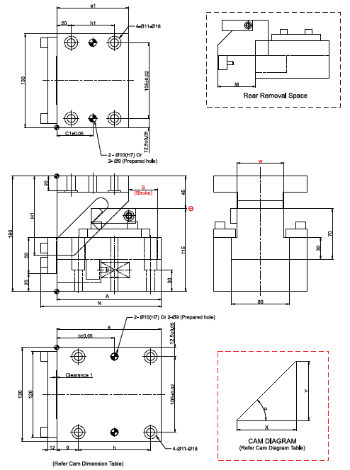
Die Mounted Cam Unit PCU-CS1-65-00

Technical Description

Material Type: Refer catalogue for material details

Width (W): 65 mm

Angle (Φ) : 00 

Stroke (S) : 40 & 60

 

Order Type : Code-Size (W)-Φ-Stroke(S)
Example : PCU-CS1-65-00-40

Availability - 30 Days
(*Note - This is tentative schedule, may vary as per material availability)

Product of: Pawan
Pawan Logo
Add to cart CAD File Item Code W Mmv_angleS Mma mma1 mmc mmC1 mmG mmh mmh1 mmN mmSL KgSL1 KgSLM KgWF KgWFM Kgwt Kgx mm
PCU-CS1 - 65-00-406504014510080503010060167125 (12.7)671 (68.4)749 (76.4)19.6 (2.0)39.2 (4.0)1975
PCU-CS1 - 65-00-6065060190110105554012570212135 (13.8)707 (72.1)759 (77.4)19.6 (2.0)39.2 (4.0)2280
Related Products