Product Details

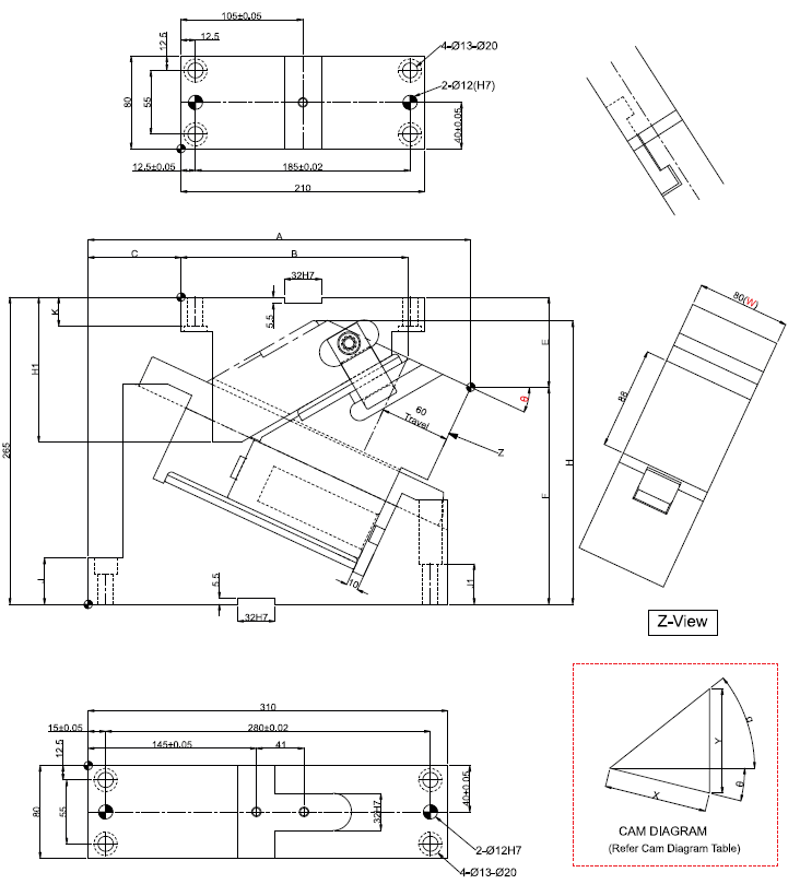
Die Mounted Cam Units - PCU-CS10-80-(00-30)

Technical Description

Material Type: Refer catalogue for material details

Width (W): 80 mm

Angle (Φ): 00 to 30 

 

Order Type : Code-Size (W)-Φ-OC
Example : PCU-CS10-80-10-K

Availability - 20 Days
(*Note - This is tentative schedule, may vary as per material availability)

*For OC option Please refer to our catalogue

Product of: Pawan
Pawan Logo
Add to cart CAD File Item Code
Related Products