Product Details

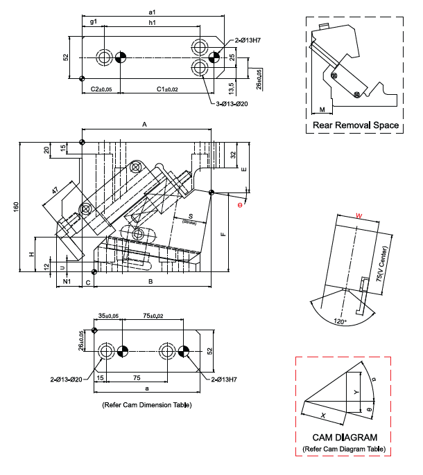
Arial Cam Unit - PCU-CS5-52-(00-20)

Technical Description

Material Type: Refer catalogue for material details

Width (W) : 52 mm

Angle (Φ) : 00 to 20

 

Order Type : Code-Size (W)-Φ-OC(*)
Example : PCU-CS5-52-00-WC

*For OC option Please refer to our catalogue

Product of: Pawan
Pawan Logo
Add to cart CAD File Item Code
Related Products