Product Details

Die Mounted Cam Unit PCU-CS1-200-00

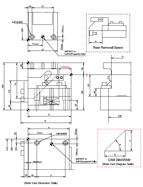
Technical Description

Material Type: Refer catalogue for material details

Width (W): 200 mm

Angle (Φ) : 00 

Stroke (S) : 40 & 60

 

Order Type : Code-Size (W)-Φ-Stroke(S)
Example : PCU-CS1-200-00-40

Availability - 20 Days
(*Note - This is tentative schedule, may vary as per material availability)

Product of: Pawan
Pawan Logo
Add to cart CAD File Item Code W Mmv_angleS Mma mma1 mmc mmC1 mmh mmh1 mmN mmSL KgSL1 KgSLM KgWF KgWFM Kgwt Kgx mm
PCU-CS1 - 200-00-402000401301106513590236461 (47.0)2477 (252.6)2765 (281.9)78.5 (8.0)117.7 (12.0)82125
PCU-CS1 - 200-00-6020006011522015012075110180256499 (50.9)2611 (266.3)2803 (285.8)78.5 (8.0)117.7 (12.0)84
Related Products