Product Details

Arial Cam Unit - PCU-CS2-150-(00-55)

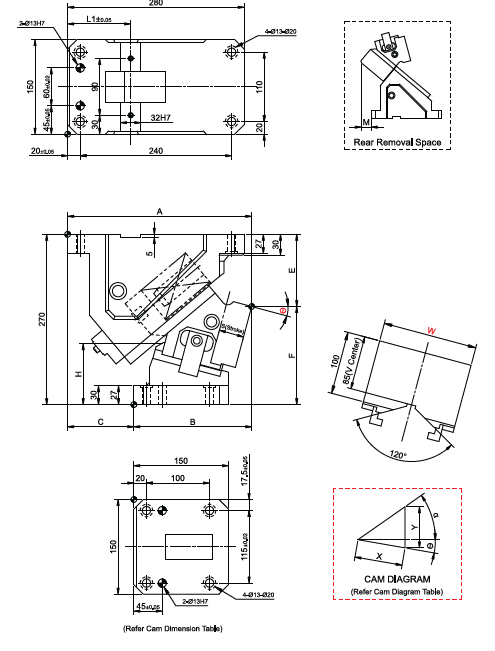
Technical Description

Material Type: Refer catalogue for material details

Width (W) : 150 mm

Angle (Φ) : 00 to 55

 

Order Type : Code-Size (W)-Φ-OC
Example : PCU-CS2-150-00-K

*For OC option Please refer to our catalogue

Product of: Pawan
Pawan Logo
Add to cart CAD File Item Code W Mma mmb mmc mmE mmF mmh mml mmL1 mmM mmS mmSL KgSL1 KgSLM KgWF KgWFM Kgwt Kg
PCU-CS2-150-0015002801601208518594501002032.1636(64.9)3991(407.0)4611(470.2)88.3(9.0)132.4(13.5)45.4
PCU-CS2-150-051505288.26173.2611595.84174.1694501002032.3636(64.9)3999(407.8)4611(470.2)88.3(9.0)132.4(13.5)45.9
PCU-CS2-150-1015010285.54180.54105102.36167.6498.9501004138.9636(64.9)4102(418.3)4611(470.2)88.3(9.0)132.4(13.5)44.4
PCU-CS2-150-1515015291.79186.79105114.47155.5398.7501004139.7636(64.9)4110(419.1)4611(470.2)88.3(9.0)132.4(13.5)44.9
PCU-CS2-150-2015020286.97196.9790122.07147.93103.5501355746.1636(64.9)4182(426.4)4611(470.2)88.3(9.0)132.4(13.5)43.2
PCU-CS2-150-2515025291.02201.0290135.08134.92103.2501355747.8636(64.9)4198(428.0)4611(470.2)88.3(9.0)132.4(13.5)43.7
PCU-CS2-150-3015030283.92213.9270138.4131.6112.8501356954.3636(64.9)4245(432.9)4611(470.2)88.3(9.0)132.4(13.5)42.2
PCU-CS2-150-3515035285.66215.6670151.91118.09112.4501356957.4636(64.9)4261(434.5)4611(470.2)88.3(9.0)132.4(13.5)42.7
PCU-CS2-150-4015040276.2231.245155.53114.47121.9501707564.3636(64.9)4301(438.6)4611(470.2)88.3(9.0)132.4(13.5)41
PCU-CS2-150-4515045275.56230.5645169.14100.86121.4501707569.6636(64.9)4325(441.0)4611(470.2)88.3(9.0)132.4(13.5)41.4
PCU-CS2-150-5015050263.74238.7425167.65102.35137501707577.8636(64.9)4357(444.2)4611(470.2)88.3(9.0)132.4(13.5)40.5
PCU-CS2-150-5515055260.74235.7425180.9489.06137.6501707787.2636(64.9)4380(446.7)4611(470.2)88.3(9.0)132.4(13.5)40.9
Related Products